鎌倉
Kamakura
- 鎌倉
- 新築戸建
鎌倉市浄明寺4丁目 新築戸建
ウッドデッキで外空間を楽しめる新築戸建
家族で住みやすい新築戸建
☆アフターサービス保証(長期10年・短期1〜2年)
☆FRP防水工事保証(工事完了から10年)
☆シロアリ保証(工事完了から5年)
☆住宅瑕疵担保責任保険(引き渡しより10年)
☆地盤保証(引き渡しより10〜20年)
☆ZEH水準
〜LIFEINFORMATION〜
▲ミニストップ・・・・・・・1200m
▲もとまちユニオン・・・・・2800m
▲ハック・・・・・・・・・・2800m
DATA詳細情報
| 価格 | 5,580万円 | ||
|---|---|---|---|
| 所在地 | 鎌倉市浄明寺4丁目 | ||
| 交通 | 横須賀線「鎌倉」駅バス9分+停歩4分 | ||
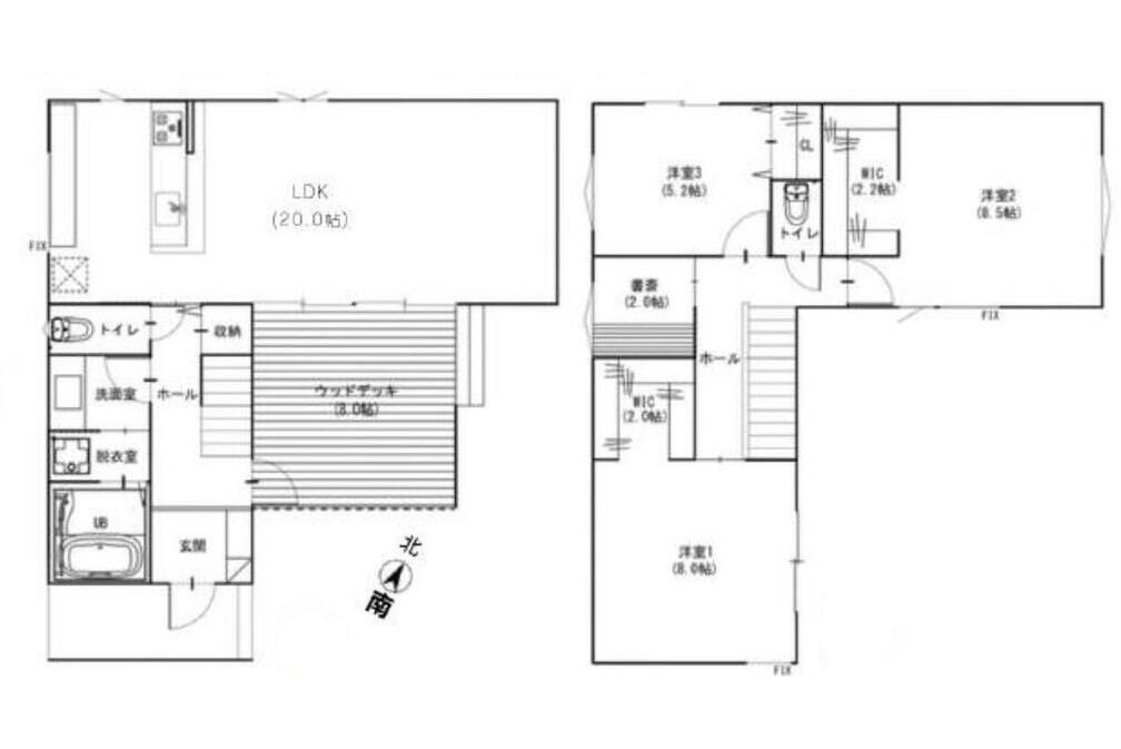
| 築年月 | 2025年11月 | 間取り | 3LDK |
| 土地面積 | 260.47㎡(78.79坪) | 建物面積 | 107.65㎡(32.56坪) |
| 建蔽率 | 40% | 容積率 | 80% |
| 地勢 | 駐車場 | 有カースペース2台分 | |
| 土地権利 | 所有権 | 地目 | 宅地 |
| 現況 | 完成済 | 用途地域 | 第一種低層住居専用地域 |
| 都市計画 | 市街化区域 | 設備 | 都市ガス・上下水・電気 |
| 接道状況 | 南側幅員4.0mに4.970m接道 | 引渡 | 相談 |
| 構造 | 木造2階建 | 取引態様 | 媒介 |
| 管理費 | 修繕積立金 | ||
| バルコニー面積 | 総戸数 | ||
| 所在階 | 内装リフォーム | ||
| その他法令上の制限 | 景観法・宅地造成及び特定盛士等規制法・文化財保護法・土砂災害防止対策推進法・土砂災害警戒区域(1部レッドゾーン有)・住民協定有 | ||
| 掲載開始日 | 広告有効期限 | ||
| 備考 | |||
CONTACTお問い合わせ
こちらの物件へのお問い合わせやご相談がございましたら、お電話あるいはメールフォームよりお問い合わせください。
電話でのお問い合わせ
- 046-876-8809
- 【受付時間】9:00-18:00 【定休日】水曜日



















